Sprzedane
Ruda Śląska, śląskie, Polska




















Rezerwacja
Dom na sprzedaż, cena 590000 PLN, 2269 PLN/m2, powierzchnia 260 m2Ruda Śląska, śląskie, Polska




















Wisto Nieruchomości – biuro godne polecenia
Ruda Śląska – Wirek | Dom z dużym potencjałem | 260 m² | działka 695 m²
Wisto Nieruchomości – biuro godne polecenia – oferuje na sprzedaż przestronny dom jednorodzinny położony w Rudzie Śląskiej, w dzielnicy Wirek. Nieruchomość o powierzchni użytkowej około 260 m², wzniesiona w latach 70., stanowi doskonałą propozycję zarówno dla osób poszukujących miejsca do zamieszkania dla dwóch rodzin, jak i dla inwestorów planujących adaptację pod wynajem.
Opis budynku
Dom został wybudowany w technologii tradycyjnej . Budynek jest w stanie do własnej aranżacji i wykończenia, a dzięki swojemu układowi daje ogrom możliwości aranżacji w zależności od potrzeb przyszłego właściciela.
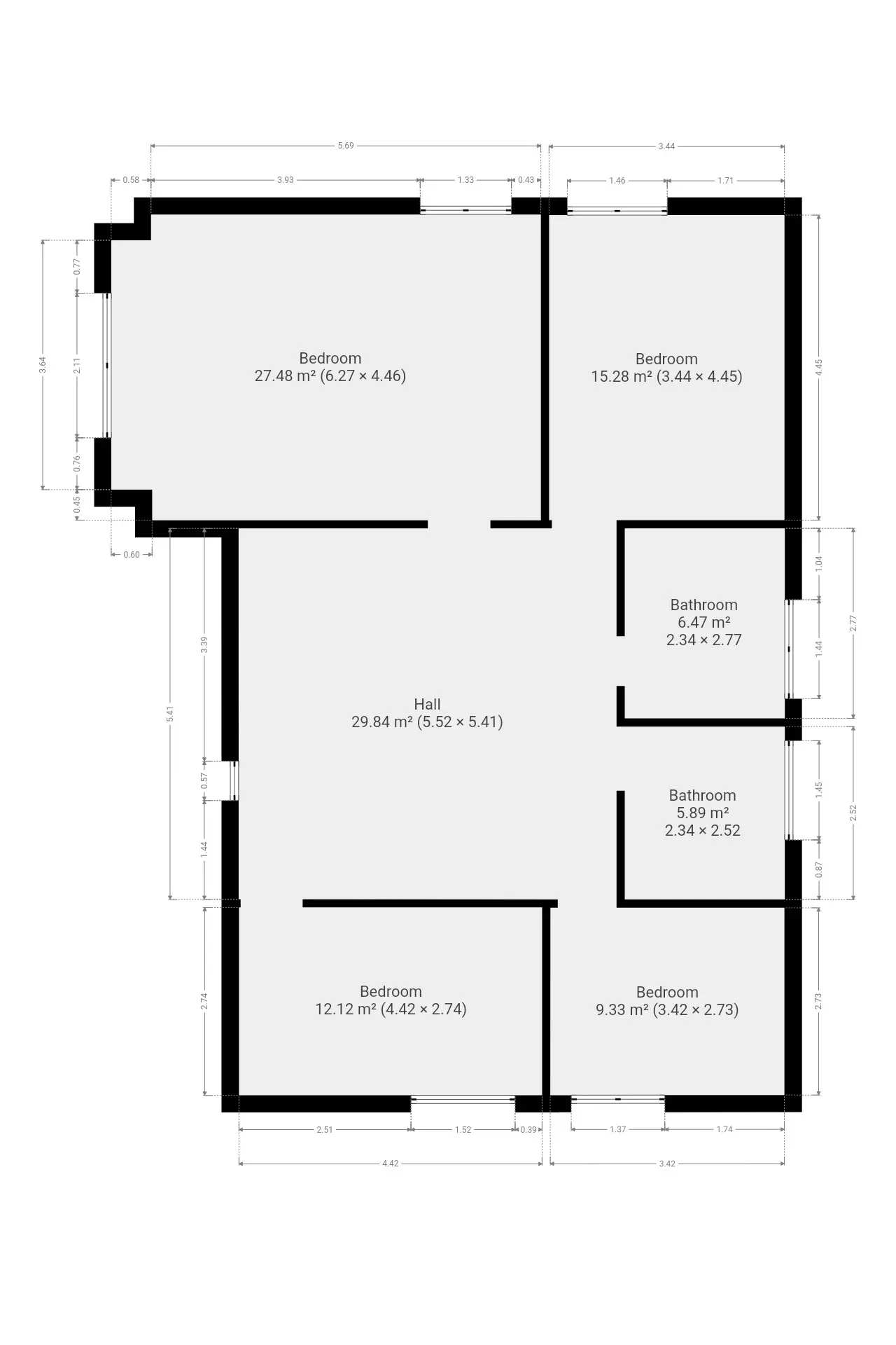
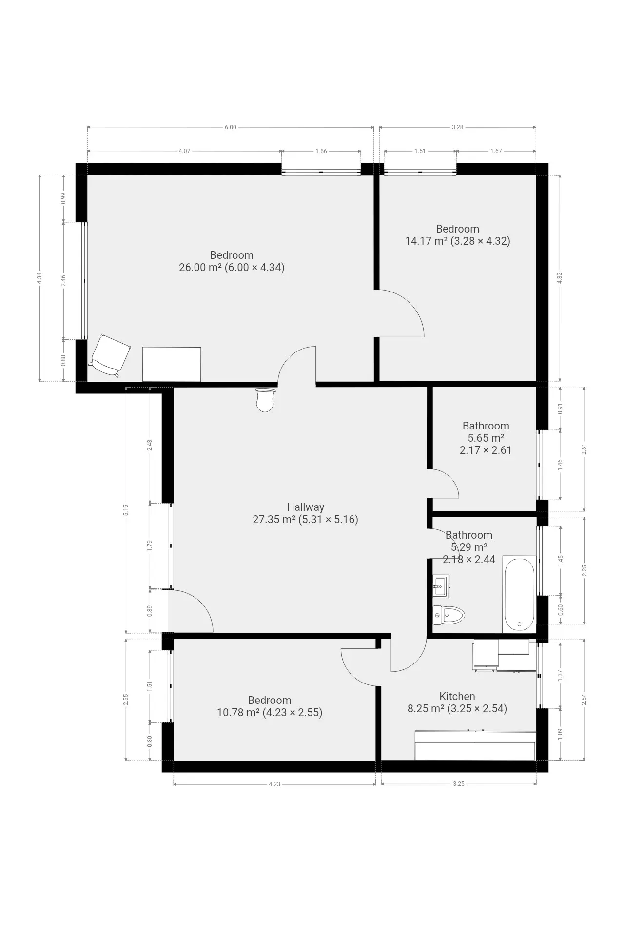
Na trzech kondygnacjach zaplanowano przestrzenie, które można zaaranżować w wielu wariantach. Istnieje realna możliwość wydzielenia nawet 10 pokoi, co czyni tę nieruchomość wyjątkowo atrakcyjną inwestycyjnie.
Rozkład pomieszczeń
Parter: obszerne pomieszczenie (niegdyś wykorzystywane jako lokal handlowy), łazienka oraz kotłownia.
Piętro: trzy pokoje, widna kuchnia z wyjściem na balkon, łazienka i korytarz.
Poddasze: duża otwarta przestrzeń do pełnej aranżacji – możliwość podziału na kolejne pomieszczenia mieszkalne.
Działka
Nieruchomość posadowiona jest na ogrodzonej działce o powierzchni 695 m². Teren daje możliwość stworzenia wygodnej przestrzeni rekreacyjnej lub dodatkowego zagospodarowania według indywidualnych potrzeb. Do posesji prowadzi bezpośredni dojazd drogą asfaltową.
Lokalizacja
Atutem oferty jest spokojna i zielona okolica. W pobliżu znajdują się tereny spacerowe i stawy, sprzyjające odpoczynkowi na świeżym powietrzu. Jednocześnie lokalizacja zapewnia szybki dojazd do głównych arterii komunikacyjnych – w tym wjazdu na autostradę A4, oddalonego zaledwie o 2 minuty jazdy samochodem. Dzięki temu łatwo można dostać się zarówno do centrum Rudy Śląskiej, jak i do sąsiednich miast aglomeracji.
Dlaczego warto?
budynek do własnej aranżacji – układ daje ogrom możliwości dopasowania do indywidualnych potrzeb,
potencjał wydzielenia aż 10 pokoi,
świetna propozycja zarówno dla inwestora, jak i dla dwóch rodzin,
atrakcyjna i spokojna okolica.
Ruda Śląska – Wirek | Dom z dużym potencjałem | 260 m² | działka 695 m²
Wisto Nieruchomości – biuro godne polecenia – oferuje na sprzedaż przestronny dom jednorodzinny położony w Rudzie Śląskiej, w dzielnicy Wirek. Nieruchomość o powierzchni użytkowej około 260 m², wzniesiona w latach 70., stanowi doskonałą propozycję zarówno dla osób poszukujących miejsca do zamieszkania dla dwóch rodzin, jak i dla inwestorów planujących adaptację pod wynajem.
Opis budynku
Dom został wybudowany w technologii tradycyjnej . Budynek jest w stanie do własnej aranżacji i wykończenia, a dzięki swojemu układowi daje ogrom możliwości aranżacji w zależności od potrzeb przyszłego właściciela.
Na trzech kondygnacjach zaplanowano przestrzenie, które można zaaranżować w wielu wariantach. Istnieje realna możliwość wydzielenia nawet 10 pokoi, co czyni tę nieruchomość wyjątkowo atrakcyjną inwestycyjnie.
Rozkład pomieszczeń
Parter: obszerne pomieszczenie (niegdyś wykorzystywane jako lokal handlowy), łazienka oraz kotłownia.
Piętro: trzy pokoje, widna kuchnia z wyjściem na balkon, łazienka i korytarz.
Poddasze: duża otwarta przestrzeń do pełnej aranżacji – możliwość podziału na kolejne pomieszczenia mieszkalne.
Działka
Nieruchomość posadowiona jest na ogrodzonej działce o powierzchni 695 m². Teren daje możliwość stworzenia wygodnej przestrzeni rekreacyjnej lub dodatkowego zagospodarowania według indywidualnych potrzeb. Do posesji prowadzi bezpośredni dojazd drogą asfaltową.
Lokalizacja
Atutem oferty jest spokojna i zielona okolica. W pobliżu znajdują się tereny spacerowe i stawy, sprzyjające odpoczynkowi na świeżym powietrzu. Jednocześnie lokalizacja zapewnia szybki dojazd do głównych arterii komunikacyjnych – w tym wjazdu na autostradę A4, oddalonego zaledwie o 2 minuty jazdy samochodem. Dzięki temu łatwo można dostać się zarówno do centrum Rudy Śląskiej, jak i do sąsiednich miast aglomeracji.
Dlaczego warto?
budynek do własnej aranżacji – układ daje ogrom możliwości dopasowania do indywidualnych potrzeb,
potencjał wydzielenia aż 10 pokoi,
świetna propozycja zarówno dla inwestora, jak i dla dwóch rodzin,
atrakcyjna i spokojna okolica.
| Informacje podstawowe | ||
|---|---|---|
| Rodzaj nieruchomości | Dom | |
| Rodzaj transakcji | Sprzedaż | |
| Rynek | Wtórny | |
| Województwo | śląskie | |
| Miejscowość | Ruda Śląska | |
| Prąd (przyłącze) | Tak | |
| Woda (przyłącze) | Tak | |
| Kanalizacja | Tak | |
| Parking | Nie | |
| Parking | Tak | |
| Rodzaj budynku | Dom wielorodzinny | |
| Rok budowy | 1970 | |
| Informacje dodatkowe | ||
|---|---|---|
| Powierzchnia działki | 695 | |
| Położenie działki | Teren płaski | |
| Kształt działki | Trójkąt | |
| Liczba pięter | 3 | |
| Liczba pokoi | 10 | |
| Stan obiektu | Do wykończenia | |
| Rodzaj kuchni | Oddzielna | |
| Materiał | Pustak | |
| Technologia | Tradycyjna | |
| Zadaszenie (materiał) | Kanadyjska | |
| Ogrzewanie | Węglowe | |
| Dostępność | Natychmiast | |
| Balkon | Tak | |
| Otoczenie | ||
|---|---|---|
| Otoczenie | Osiedle domów jednorodzinnych | |
| Głośność | Cicho | |
| Park | Tak | |
| Bank | Tak | |
| Restauracja | Tak | |
| Bar / pub | Tak | |
| Szkoła podstawowa | Tak | |
| Liceum / Technikum | Tak | |
| Uczelnia | Tak | |
| Żłobek | Tak | |
| Przedszkole | Tak | |
| Basen | Tak | |
| Fitnes | Tak | |
| Pralnia | Tak | |
| Apteka | Tak | |
| Fryzjer | Tak | |
| Supermarket | Tak | |
| Sklep spożywczy | Tak | |
| Weterynarz | Tak | |
Kontakt:
Wioleta Wydzierzecka
Tel.: 573 826 976
Nr ref.: O-403
Wioleta Wydzierzecka
Tel.: 573 826 976
Nr ref.: O-403
