Sprzedane

Rezerwacja

Mieszkanie na sprzedaż, cena 174900 PLN, 4164 PLN/m2, powierzchnia 42 m2
Bytom, śląskie, Polska

Rezerwacja 1Rezerwacja 2Rezerwacja 3Rezerwacja 4Rezerwacja 5Rezerwacja 6Rezerwacja 7Rezerwacja 8Rezerwacja 9Rezerwacja 10Rezerwacja 11Rezerwacja 12Rezerwacja 13Rezerwacja 14Rezerwacja 15Rezerwacja 16Rezerwacja 17Rezerwacja 18Rezerwacja 19
Rezerwacja

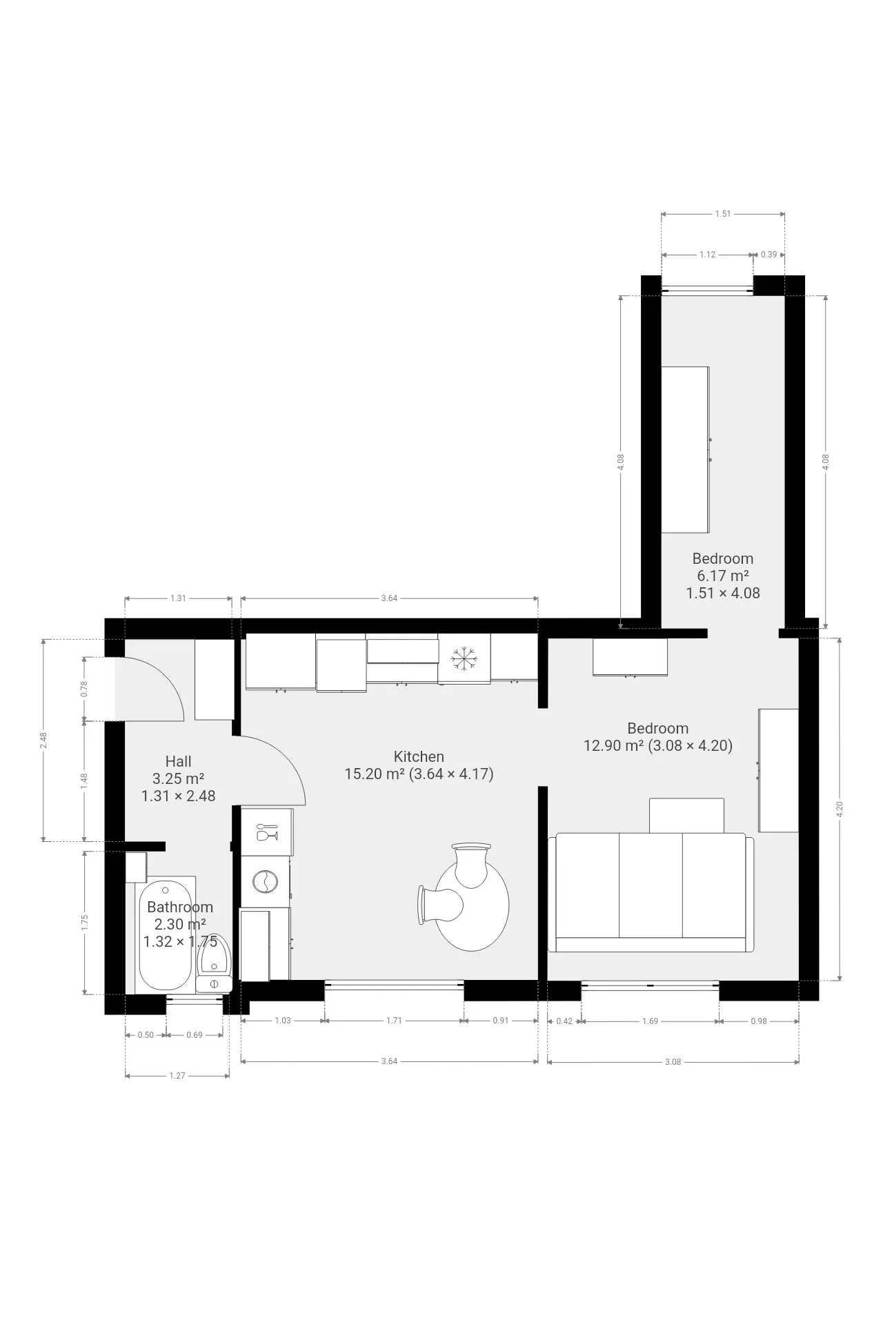
Na sprzedaż: 2-pokojowe mieszkanie w centrum Bytomia – gotowe do zamieszkania od zaraz
Biuro WISTO Nieruchomości prezentuje funkcjonalne i odświeżone mieszkanie o powierzchni 41,16 m², położone na komfortowym drugim piętrze w zadbanym, ocieplonym budynku zlokalizowanym w samym sercu Bytomia.

Układ mieszkania:

przestronny salon z aneksem kuchennym
dwa oddzielne pokoje (idealne jako sypialnia i pokój dziecięcy lub gabinet)
łazienka z WC
przynależna piwnica o powierzchni 4,28 m²
Stan techniczny:
Mieszkanie zostało odświeżone – jest czyste, zadbane i gotowe do wprowadzenia się od zaraz, bez konieczności ponoszenia większych nakładów finansowych.

Ogrzewanie:
Obecnie elektryczne, jednak dzięki niewielkiej powierzchni lokalu oraz ocieplonemu budynkowi, koszty utrzymania są bardzo niskie. Istnieje możliwość zmiany systemu ogrzewania na gazowy – instalacja gazowa znajduje się w budynku.

Lokalizacja:
Centrum miasta – w pobliżu znajdują się sklepy, szkoły, przystanki komunikacji miejskiej, rynek oraz inne ważne punkty usługowe. Dużym atutem jest dostępność wielu miejsc parkingowych w bezpośrednim sąsiedztwie budynku.
Informacje podstawowe
Rodzaj nieruchomościMieszkanie
Rodzaj transakcjiSprzedaż
RynekWtórny
Województwośląskie
MiejscowośćBytom
Prąd (przyłącze)Tak
Woda (przyłącze)Tak
Gaz (przyłącze)Tak
KanalizacjaTak
Warunki zabudowyTak
ParkingNie
Rodzaj budynkuBlok mieszkalny
Rok budowy1950
Informacje dodatkowe
Piętro2
Liczba pięter3
Liczba pokoi2
Stan obiektuDo użytku
Rodzaj kuchniOddzielna
MateriałCegła
TechnologiaTradycyjna
OgrzewanieElektryczne
DostępnośćNatychmiast
BalkonNie
PiwnicaTak
Otoczenie
OtoczenieOsiedle bloków mieszkalnych
GłośnośćCicho
LasTak
BankTak
RestauracjaTak
Bar / pubTak
Szkoła podstawowaTak
Liceum / TechnikumTak
UczelniaTak
ŻłobekTak
PrzedszkoleTak
BasenTak
FitnesTak
AptekaTak
SupermarketTak
Sklep spożywczyTak
WeterynarzTak


Kontakt:

Tel.:
Nr ref.: O-410